BENEFITS OF WORKING WITH A DESIGNER
Mention the word “designer,” and many people think of an interior decorator who deals primarily with fabrics and furniture. An experienced interior designer (also called a designer) plays a much more robust role, especially in Design + Build.
From the outset, an interior designer concentrates on proactive problem-solving. As a single point of contact throughout a remodel, a designer offers convenience, continuity, cohesiveness, and collaboration with every client. “I love working with clients to create solutions to their unique design challenges that ultimately exceed their expectations,” notes Harrell Design + Build Designer Barb Wingo, Allied ASID.
What does a designer bring to the Design + Build process?
A designer’s forte is often thought of in terms of the “finishing touches” to a remodel. While it is true designers help clients pick just the right shade of blue for their living room walls or the perfect light fixture for their entry, their skill and expertise are an integral part of the entire Design + Build process.
In the Design + Build process, the first person you discuss your remodeling plans with is an designer. They gather information about you, your family, your home, and how you want to live in your newly remodeled space from that initial conversation. This collaborative partnership with your designer continues through the design and into the construction of your remodel.
Where to Begin?
An experienced designer will gather all the information needed about your home to determine what is feasible. They will come to your home to measure the current structure, augmenting this with photos. All that data will lead to the creation of existing floorplans, called an “As-Builts.” This initial assessment of how the home is built is a crucial first step. When combined with detailed research and analysis of your property based on the city’s planning and development guidelines, this feasibility study informs the requirements for your project.

Main bath before photo
Designers are well versed in planning and building code requirements, especially in Design + Build. In-depth technical knowledge results in buildable designs, decreasing the need for change orders, which often result in delays and potential increases to the cost of construction. Credentials you may look for in a designer would be CID (Certified Interior Designer), Allied ASID or ASID (American Society of Interior Designers) or NKBA (National Kitchen and Bath Association) designations such as CKD (Certified Kitchen Designer).
How Will the New Space Work?
A designer takes the information they have learned about you and what you’re looking to achieve with your remodel, coupled with the existing conditions, to create proposed designs. A designer maximizes flow and function using space planning and layout of remodeled areas or additional square footage, taking into account furniture layouts of existing or new furniture, placement of major works of art on the wall, and other factors that affect traffic flow and circulation throughout the spaces. While many architects create the interior and exterior “shell” of a space, a seasoned designer will focus on how that space will function. For example, will wall and window placement in the main bedroom allow for a bed and nightstands? While in the kitchen, is the chef separated from family and guests?
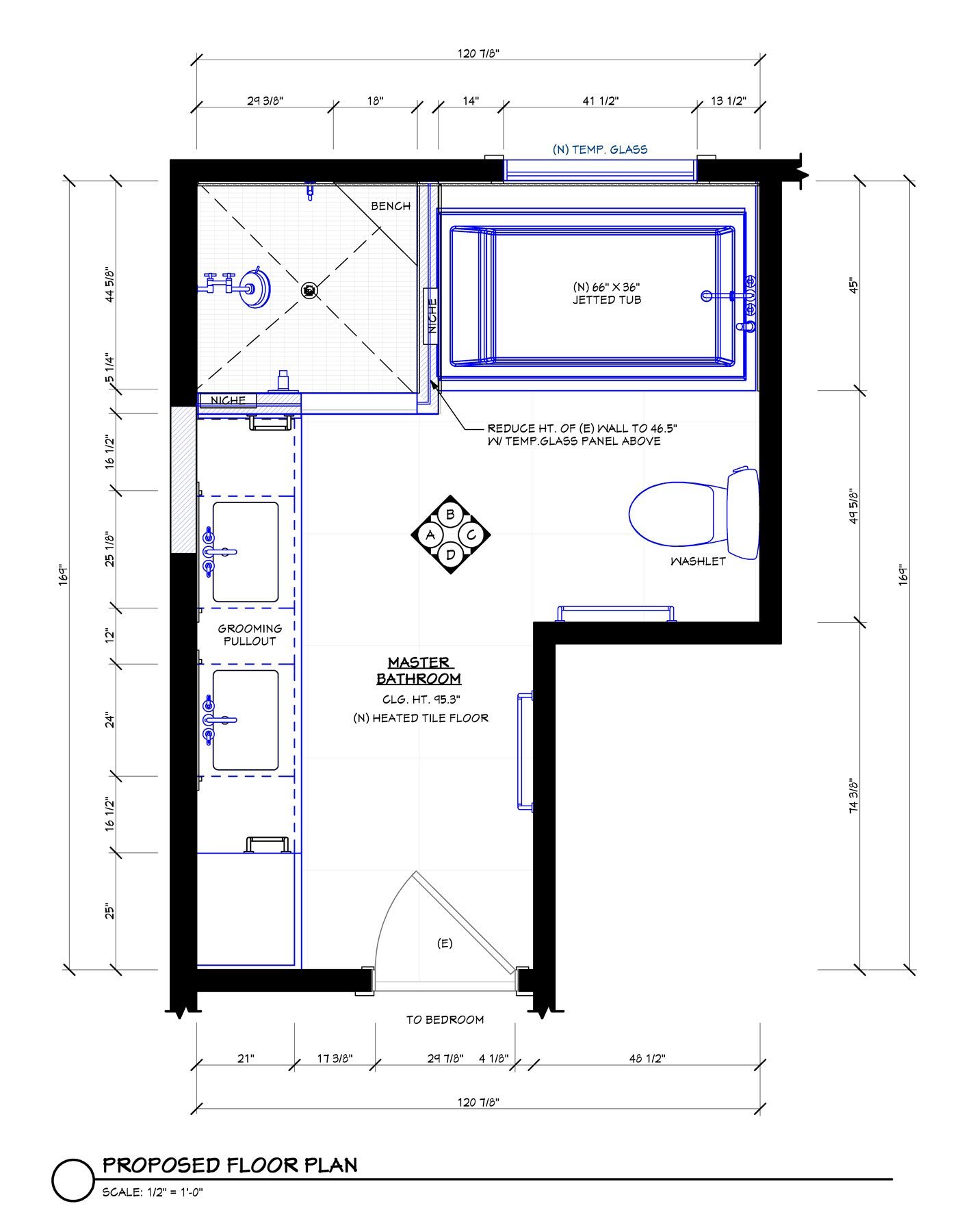
Designers create proposed floorplans, wall elevations, and 3D images incorporating fixtures and finishes to help their clients envision how their new space will look.


How Will My Home Meet My Needs?
The design process is an interactive one between designer and client. Designers ask a myriad of questions (and listen to the answers!) to determine how to customize various areas of your home to meet your distinct needs. “You are the expert on your home and your family,” Barb emphasizes. Designers work with you to assess your lifestyle, unique storage, and organizational needs. Does your family like to cook together? Then your kitchen design may include multiple prep spaces and a second sink in the island. Or, you may have activities or collections that require custom storage solutions.

A custom pull-out offers separate areas for a blow dryer and an electric toothbrush, both of which can remain hidden and plugged into an interior docking station.

Specialty drawer organization offers dividers to organize cosmetics.
Customizing your home may include designing for people with varied abilities or ages living in or visiting the home. Universal Design principles ensure that all people can live in the home as comfortably and independently as possible. If such requirements are needed, a designer will discuss them in detail and guide you toward areas where Universal Design elements make sense, helping you choose products and finishes that fit your desired aesthetic. Working with a NARI (National Association of the Remodeling Industry) credentialed UDCP (Universal Design Certified Professional) can be beneficial to guide the process and unique design needs.

Main bath materials
Will My Home Look Like Me?
When it comes to a remodel, some clients know exactly what they want. Others are overwhelmed by the process and decisions involved in a home remodel.
A good designer will help define your aesthetic and select elements that reflect your style. Your home and the spaces in it should be a reflection of you, not your designer. Some of the tools a designer uses include curated images, digital mood boards, and material samples to familiarize you with styles and options. You may have “style homework,” which helps your designer discover your preferences through a Pinterest board or Houzz idea book.
What is the Value of Using an Interior Designer?
You benefit from a designer’s education and experience. Designers know the best materials for a variety of applications. They can help select:
- Countertops
- Tile
- Light fixtures
- Plumbing fixtures
- Door and cabinet hardware
- Appliances
- Flooring
- Paint finishes and colors
- Cabinets
- Windows and doors
- And much more!
Designers know the specifications of all of these components, helping you make informed decisions on price and quality. And because they often have access to products and materials not available to the general public, your designer can offer a wider variety of materials and fixtures that lend themselves to your particular style.
Designers are involved in the Design + Build process from beginning to end, providing their clients with unparalleled service, convenience, and quality. Working as a team, a designer can help you embrace your aesthetic, make the most of your resources, and create quality spaces that fit the way you live. “One of my favorite things to hear a client say is that they never thought of their space the way we designed it, but it’s perfect for them,” Barb observes.

Main bath after photo
Learn more about the bathroom remodel featured in this article.
Are you dreaming of ways to reimagine your home? We invite you to schedule a complimentary discussion with one of our experienced Designers.
Or attend one of our virtual workshops to learn more about the Harrell Design + Build Design + Build experience.
Woman Founded and 100% Employee-Owned, Harrell Design + Build has created distinctive homes in Silicon Valley and on the mid-Peninsula since 1985. Our Design + Build Team is here to help you reimagine your home inside and out.



